80 Regentville Drive, Elizabeth Hills

SOLD
3
3
1
X

SOLD UNDER THE HAMMER DEAN BOSKOVIC 0474 444 447

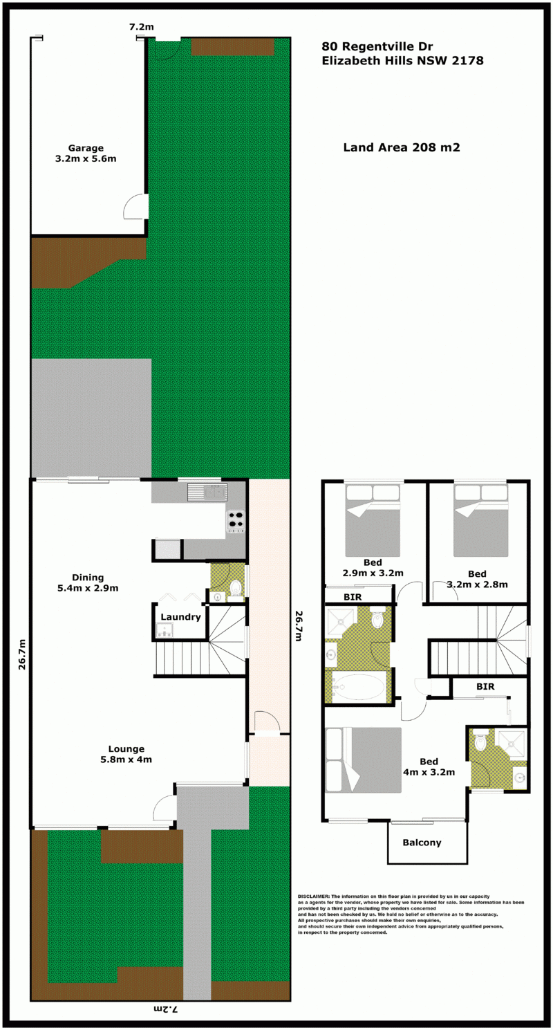
Ideal opportunity to acquire a new family home or a fantastic investment property. Meticulously presented this three bedroom home has been built by the Mirvac group with premium quality inclusions throughout.
The lower level features a well sized living & dining area, bathroom, tiled flooring & a chef's kitchen. The upper level consists of three commodious bedrooms main with ensuite and a sun washed balcony, separate bathroom & carpet flooring.
The property also consists of a detached single garage and a great outdoor living area perfect for entertaining.
Perfectly located in the heart one of South West Sydney's most prestigious new estates this home is ready to move in without a cent to spend.
Auction Onsite: 15/08/15 at 1:00pm
Opens: Saturday's 1:00-1:30pm
Dean Boskovic 0474 444 447
Dean Jr Boskovic 04 7474 7474

X

PRIVATE SALE

For Sale

Property type

Semi Detached

Inspection times

View strictly by appointment

Bos Realty

6102 Pioneer Drive
Carnes Hill, NEW SOUTH WALES, 2171

Phone. 04 7474 7474

X
SOLD

SOLD

Currency

X

Name. Dean Boskovic
Mobile. 0474 444 447
Email. dean@bosrealty.com.au
X
-33.9032892150.85078831580 Regentville Drive Elizabeth Hillshttp://www.bosrealty.com.au/wp-content/plugins/Realty/display/elements/images/pin_map.png
X

Follow The Sale

Bos Realty 'Follow The Sale' section allows you to stay up to date with any updates to this property listing. Notifications are automatically sent to your RSS aggregator or email address when any information is updated.
RSS Feed
X FacebookShare on Facebook
X

Make an Enquiry

Submit

All fields required.

Email to a Friend

Close