62 Pearce Street, Liverpool

965000
5
3
2
X

SOLD $965,000 - DEAN BOSKOVIC 0474 444 447

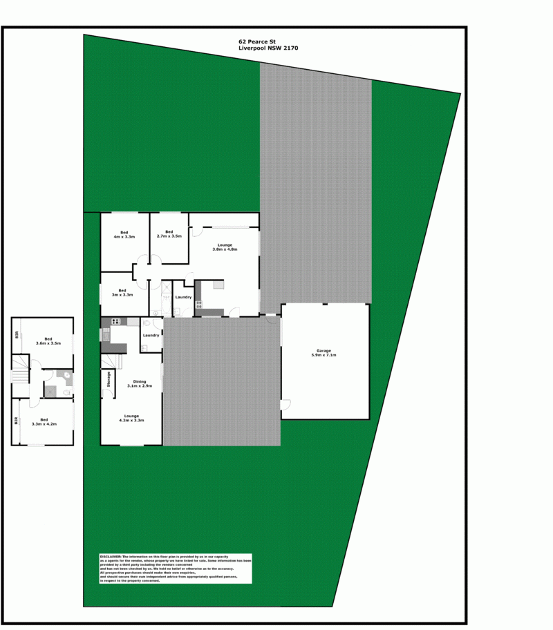
A once in a lifetime opportunity presenting unprecedented investment & development potential. Featuring two self-contained houses with the main houses consisting of three bedrooms and the second house spread over two spacious levels with two bedrooms with a combined potential rental income of $850 per week!
Both properties are sitting on a huge 759m2 of level land with a 25 metre frontage with R3 medium density zoning which present developers with multiple opportunities to construct townhouses. Ideally positioned in one of the most prestigious pockets in Liverpool mere moments from the CBD with multiple townhouses constructions underway in the neighbouring properties.
Land Size: 759m2
Frontage: 25 metres
Zoning: R3
Properties: 3 Bedroom House & 2 Bedroom House
Potential Rental Income: $850pw
Auction Onsite: 15/08/15 at 11:00am
Opens: Saturdays 11:00-11:30am (commencing the 25th)

X

PRIVATE SALE

For Sale

Property type

House

Inspection times

View strictly by appointment

Bos Realty

6102 Pioneer Drive
Carnes Hill, NEW SOUTH WALES, 2171

Phone. 04 7474 7474

X
SOLD

SOLD

Currency

X

Name. Dean Boskovic
Mobile. 0474 444 447
Email. dean@bosrealty.com.au
X
-33.9301611150.91100041562 Pearce Street Liverpoolhttp://www.bosrealty.com.au/wp-content/plugins/Realty/display/elements/images/pin_map.png
X

Follow The Sale

Bos Realty 'Follow The Sale' section allows you to stay up to date with any updates to this property listing. Notifications are automatically sent to your RSS aggregator or email address when any information is updated.
RSS Feed
X FacebookShare on Facebook
X

Make an Enquiry

Submit

All fields required.

Email to a Friend

Close